El plazo de ejecución de los trabajos es de 12 meses y deberá determinar la distribución y adecuación de espacios de la unidad así como la propuesta de diseño del edificio
El Ayuntamiento continúa dando pasos para la construcción de la residencia de mayores en Santa Ana. Ya se ha formalizado el contrato del servicio de asistencia técnica para la redacción del Plan Especial de Reforma Interior (PERI), correspondiente a la actuación de reforma interior recogida en el Plan General de Ordenación Urbana (PGOU) y delimitada por la Unidad de Ejecución UE SA-7 Santa Ana, así como a la redacción de estudios previos para la construcción del citado centro.
El adjudicatario del referido contrato es el arquitecto Jesús Miguel del Moral Martínez, por un importe de 89.999€ (IVA incluido) y una duración de 12 meses, contados desde el día siguiente a la firma del contrato. La edil de Urbanismo, Encarnación Pérez, señala que “seguimos dando pasos para hacer realidad este proyecto tan necesario y demandado por la ciudadanía. Tras esta adjudicación, las siguientes fases pasarán por el avance, documento de alcance estratégico (DAE), estudios previos, aprobación inicial y aprobación definitiva”.
La ordenación urbanística propuesta por el adjudicatario para la UE SA-7, la distribución y adecuación de los usos establecidos para el PERI, así como los flujos y recorridos interiores y exteriores, la organización y funcionamiento global del conjunto de la propuesta, o su posicionamiento y relación con el lugar y su entorno, han sido algunos de los criterios que se han valorado en el procedimiento.
Desde el punto de vista arquitectónico, la propuesta destaca por las técnicas y estilo contemporáneo y vanguardista empleados en el edificio, con un diseño que busca dotar de luz a los espacios y unas altas calidades técnicas. Ambos aspectos, (ordenación urbanística y arquitectura del edificio), así como los estudios previos propuestos por el adjudicatario, aúnan la idoneidad sobre los usos y espacios planteados, siendo totalmente funcionales y viables. 
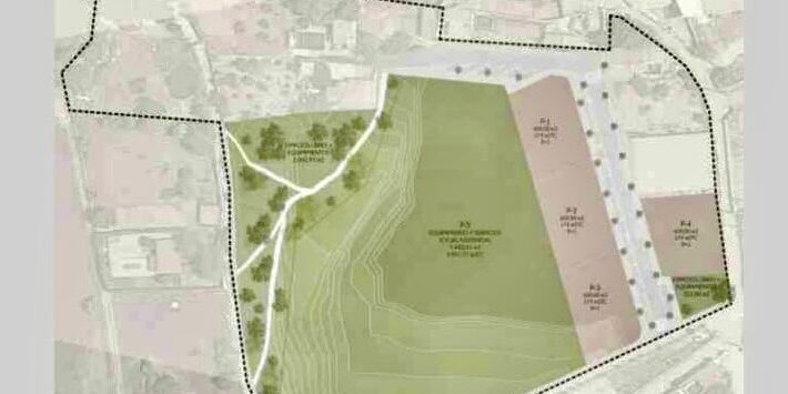
La construcción de esta segunda residencia de mayores es una de las grandes peticiones que demandan tanto personas mayores como familias, que por falta de plazas en la residencia actual, deben irse a otros centros fuera del municipio. La parcela en la que se construirá la nueva infraestructura contará con 9.440 m2 para equipamientos y servicios, de los cuales son edificables 4.957 m2, mientras que 2.263 m2 se destinarán exclusivamente a zonas verdes. De esa superficie, 2.061 m2 mantendrán su condición natural, con implementación de caminos y pasarelas que se integrarán en el paisaje, y 202 m2 se convertirán en parque urbano.

